Direccion

Chiozza 2197 - San Bernardo || Diagonal Rivadavia 2, Mar de Ajó

Telefono

(02257) 15-668-075 || (02257) 15-636-310

Whatsapp

2257668075

Volver

Volver al listado

Oportunidad

EMPRENDIMIENTO THIAGO I° - VENTA DE POZO !! - DANIEL PIZARRO PROPIEDADES

direccion Corrientes 120 - Edificio Thiago I°, Mar De Ajó

Venta

USD 35.000

Características
tipo Departamentos
ambiente 3 ambientes
dormitorio 2 dormitorios
baños 1 baño
cochera cochera
parrilla Con parrilla
piletas Sin pileta
anticipo y cuotas Anticipo y cuotas
permuta Acepta permuta
superficie Sup. cubierta 52m2
superficie Sup. total 56m2
superficie 5 pisos
antiguedad Antigüedad: En construcción
Acerca de la propiedad

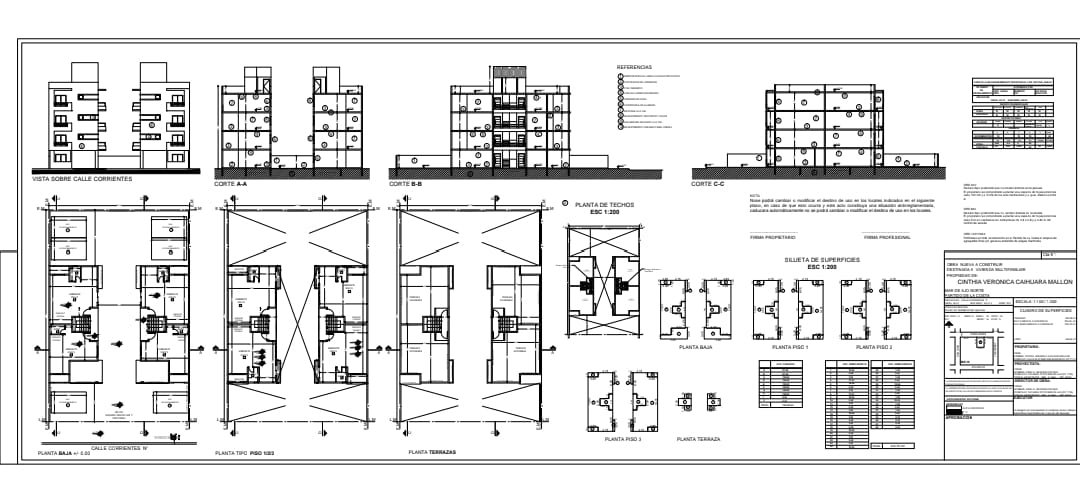
EDIFICIO THIAGO I°
MODERNO COMPLEJO DE DOS TORRES DE TRES PISOS CON 16 DEPARTAMENTOS Y 14 COCHERAS.- UBICADO EN LA CALLE CORRIENTES 120 DE MAR DE AJO NORTE, SE ENCUENTRA EMPLAZADO SOBRE UN TERRENO DE 600 M2. Y A 100 MTS. DEL MAR. EL EMPRENDIMIENTO CONTARA CON 14 UNIDADES DE 3 AMBIENTES, 2 DE 2 AMBIENTES Y 14 COCHERAS.- LOS DEPARTAMENTOS ESTARAN DISTRIBUIDOS EN 2 UNIDADES POR PLANTA SIENDO QUE EN LA PLANTA BAJA SE ENCUENTRAN 2 DE 2 AMBIENTES Y 2 DE 3 AMBIENTES Y EN LAS PLANTAS SUPERIORES 2 DE 3 AMBIENTES POR PISO.- TODOS LOS DEPARTAMENTOS SON EXTERNOS Y CON BALCON.- ENTRE SUS COMODIDADES PRINCIPALES CUENTAN CON LIVING COMEDOR, COCINA, BAÑO, 1 O 2 DORMITORIO Y BALCON.- LAS COCHERAS SON 14 EN TOTAL, SIENDO QUE 2 SON CUBIERTAS Y EL RESTO DESCUBIERTAS.-  

¡¡ OFERTA LANZAMIENTO CONTADO: 2 AMBIENTES CON COHERA:  u$s 35.000 !!
¡¡ PLAN FINANCIADO: AL BOLETO u$s 10.000.- Y 24 CUOTAS FIJAS DE u$s 1.300.-


MEMORIA DESCRIPTIVA:
TERMOTANQUE ELECTRICO DE 50 LTS.-
COCINA ELECTRICA
MESADA - BAJO MESADA.-
SANITARIOS MARCA CAPEA O FERRUM
GRIFERIA FV O PEIRANO
CAÑERIAS DE TERMOFUCION 
CERAMICA EN LOS DORMITORIOS Y BAÑO
PORCELANATO EN EL LIVING COMEDOR
REVESTIMIENTO EN REVEAR EN EL FRENTE
PUERTAS INTERIORES PLACAS
PUERTA DE ENTRADA EN ALUMINIO NEGRO
PUERTAS BALCON Y VENTANAS ALUMINIO 
INSTALACIONES PREPARADAS PARA  AIRE ACONDICIONADO

OPORTUNIDAD LANZAMIENTO - ARMA TU PLAN DE PAGO!
FECHA ENTREGA:  DICIEMBRE 2027


 

descargar Descargar: COMPLEJO THIAGOI - BUSCADOR

Ubicación
Consultar por propiedad
Emprendimiento Thiago I° - Venta De Pozo !! - Daniel Pizarro Propiedades
Venta
USD 35.000

Comunicate con nosotros

error

error

error

error


Propiedades relacionadas
Chatea con nosotros situacion
contacto No dudes en contactarte con nosotros contacto
Whatsapp WHATSAPP telefono LLAMAR
Comunicate con nosotros

error

error

error

error